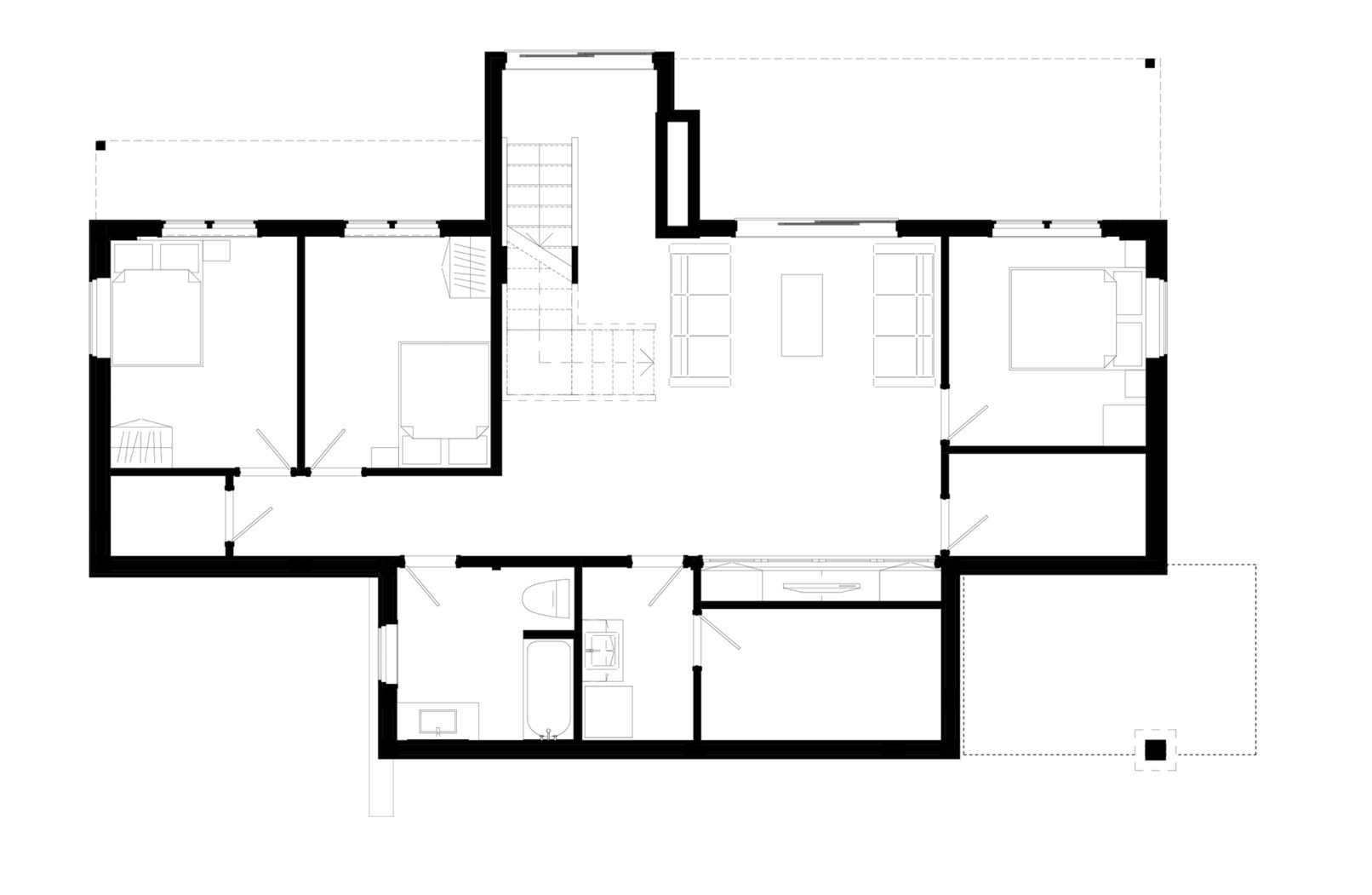
Clear Lake Cottage
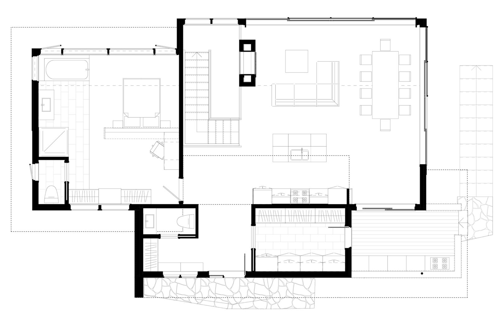
A large open concept main living space with high ceilings faces the view and features a frame-less corner multi panel sliding door system on the two main walls. A large stone fire place surround connects the main floor to lower level and is complimented by adjacent stair case.











