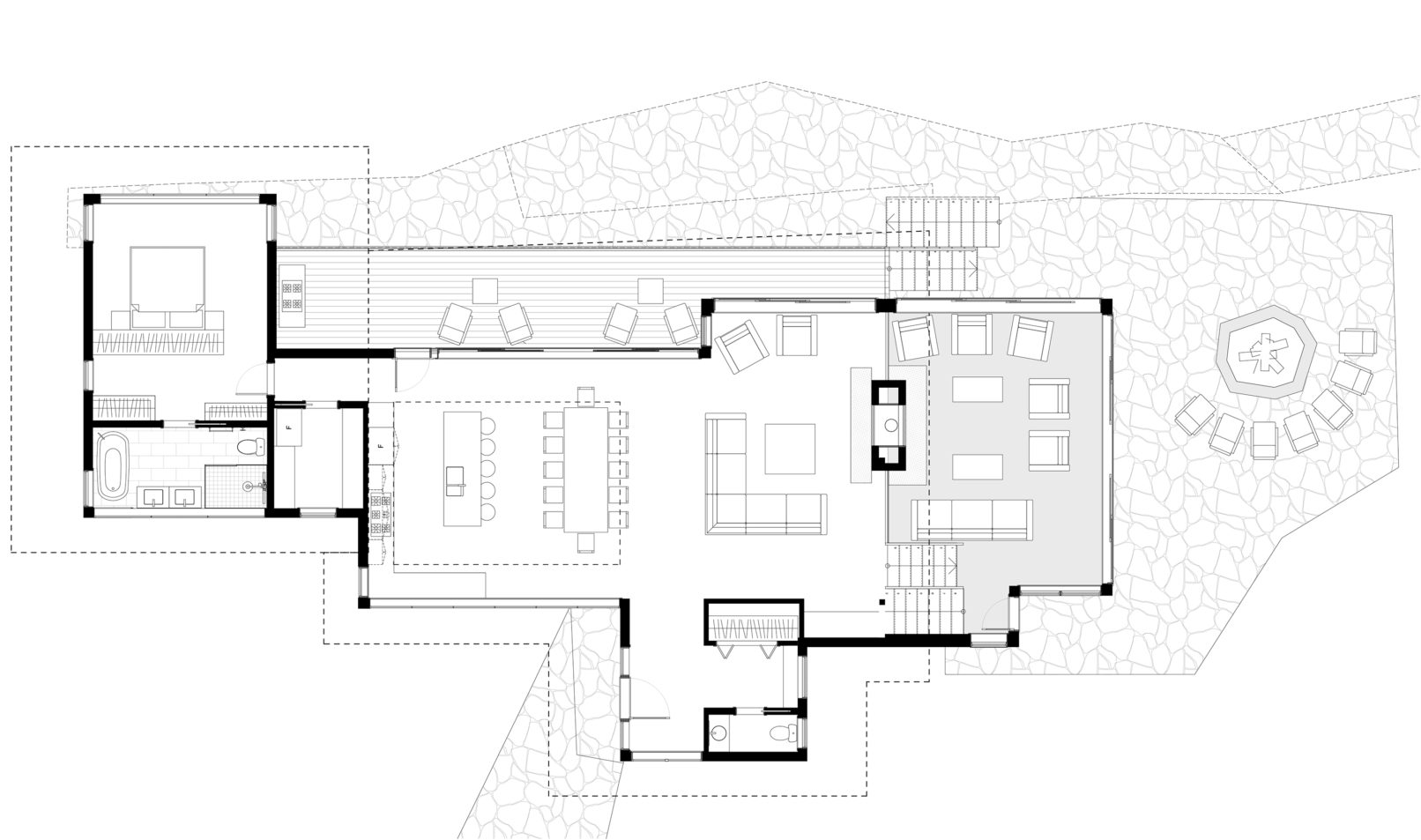
Stanley Bay Cottage
Set on top of a steep cliff, this family cottage stretches parallel to the cliff contour and lake front to maximize views to the water. A large sun room bridges the main floor and lower level, featuring a see through fireplace and monolithic stone surround.















